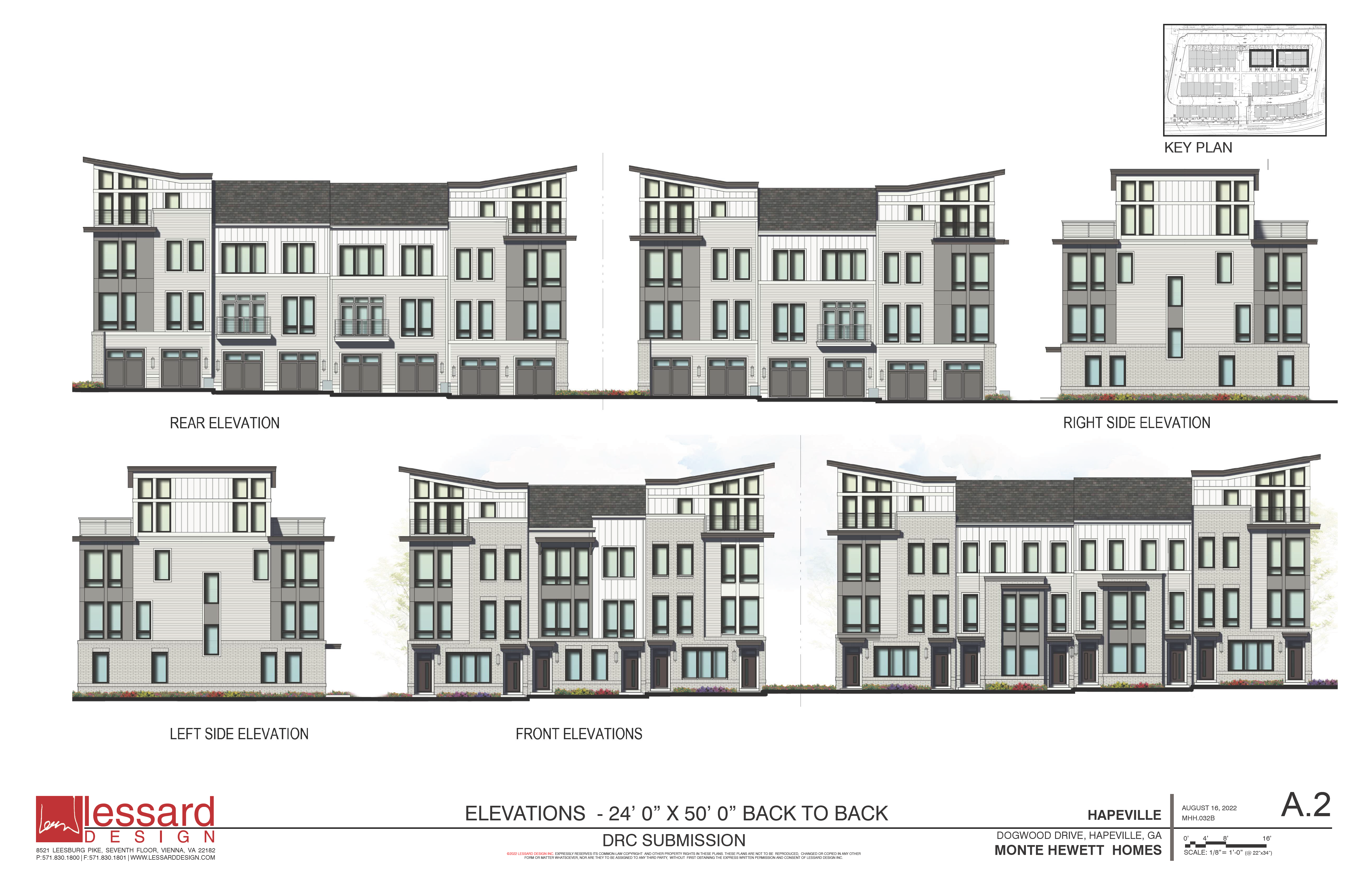
3335 Dogwood Drive: Townhome Development

3345 dogwood

Project Status: Under Construction

Brief Description: Construction of a 58-unit townhome development at 3309-3345 Dogwood Drive. 

Agenda Link: